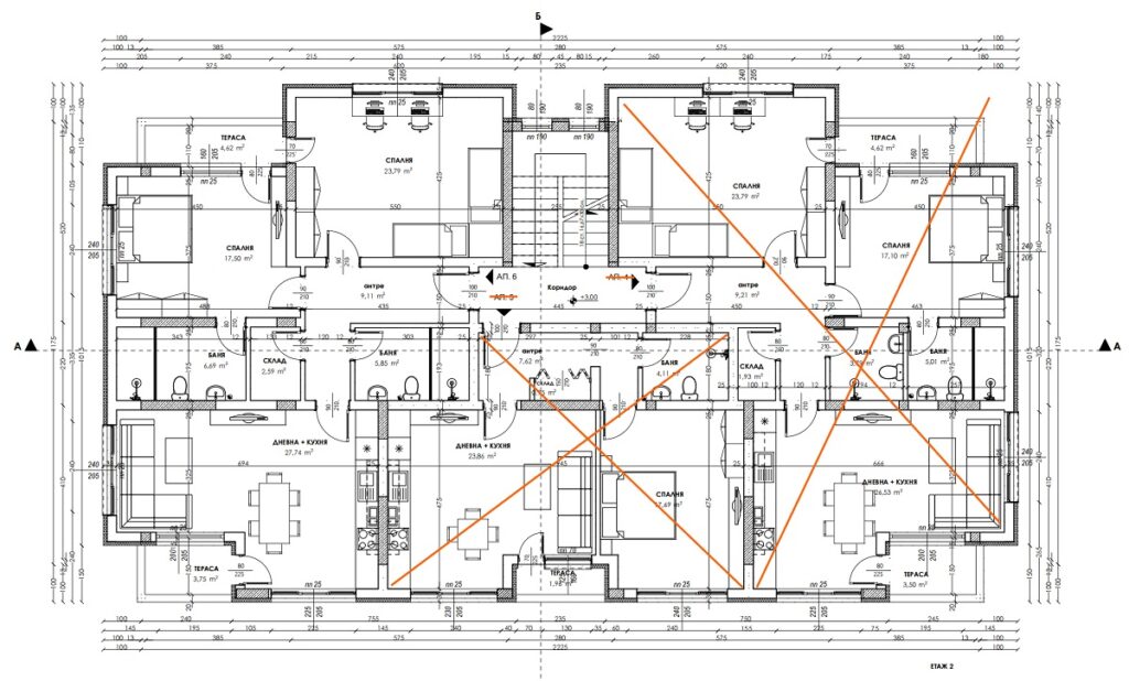
кв. Коматево - Ohana Residents - 2 сгради - 3 етажа /свободни са на 1ви и 2ри/
Ohana Residence е бутиков жилищен комплекс, създаден за хора, които търсят спокойствие, уединение и високо качество на живот. Проектът е разположен в тиха зона на кв. Остромила, с ниско застрояване и заобикаляща среда от къщи, което гарантира дългосрочен комфорт и липса на пренаселване.
Концепцията е насочена към малък брой обитатели, повече лично пространство и усещане за дом, а не просто жилище. Апартаментите са проектирани с акцент върху реални, използваеми площи и функционалност, а не върху формални квадратури.
Всяко жилище предлага високи тавани, просторни помещения и възможност за лична външна зона, което създава усещане за градска къща.
Основни характеристики:







Можете да ни пишете директно чрез формата за контакт по-долу – ще отговорим възможно най-скоро!
© 2026 Trivium Estate. All rights reserved.